电动调节阀
电动调节阀通经范围:20-200mm
压力等级:1.0-10.0mpa(150LB 300LB 600LB)
阀体材质:WCB 304 316 316L
驱动方式:电动电子式 电动智能式
连接方式:法兰 焊接
控制方式:开关型 调节型
24小时咨询热线
13306260970
压力等级:1.0-10.0mpa(150LB 300LB 600LB)
阀体材质:WCB 304 316 316L
驱动方式:电动电子式 电动智能式
连接方式:法兰 焊接
控制方式:开关型 调节型
应用行业
| 化工、石油 | 轻工、电站 |
| 泊全等要求流重大,世控里小的工业自控系统中。 |
立信隆电动单座调节阀优势
- 1. 顶导向结构,流通精度高 单座电动调节阀采用顶导向结构,阀体结构紧凑,流体通道呈现S流线型,压降损失小,流体量大,可调范围广,流通特性精度高。
- 2.阀芯导向面积大,抗震性好 阀芯导向面积大,抗震性好,阀座关闭性能符合GB/T4213-92标准,调节阀配用接收ON-OFF或4-20ADC或1-5V的直流信号进行比例动作的小型、坚固、高精度的执行机构,更适用于要求可靠性及关闭性能高的高温、低温及高压场合下使用。
材质图表

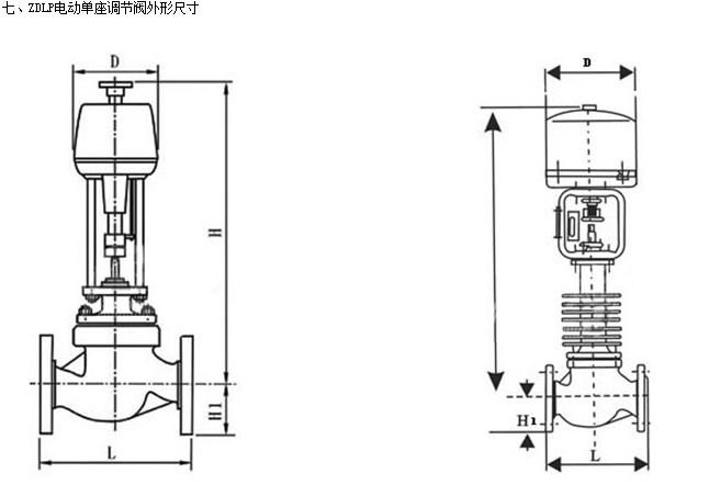
尺寸重量参数




- 服务流程
- 电话沟通,了解基本需求
- 合格物流包装
- 上门现场沟通
- 指导安装调试
- 双方确认,选型成功
- 启动优质售后
- 下单生产制造

- 了解您的实际需求创造 更高价值
- 提高合理选型方案,确保买到合格的产品
- 分析未来使用场景,计算长期使用成本
- 提供更多技术服务,节约能源

- 帮您解决现有 流体控制难题
- 系统压力下不稳定,设备升温过慢?
- 原有供应商不能提供正确技术支持?
- 无法准确控制流体压力温度?

-
已经为235位工厂用户解决了
各式近1000种管道系统解决方案 - 99家印染行业用户
- 22家视频饮料行业用户
- 39家纺织行业用户
- 34家环保水处理行业用户
- 28家包装行业用户
- 13家机械制造行业用户

相关案例
衢州市鼎盛化工科技有限公···

项目客户: 衢州市鼎盛化工科技有限公司最终用户:···...立信隆流体和广州生物设备···

10月中旬,广州维**生物科技是一家专门生产病理···...机械设备知名品牌史陶比尔···

近日, 昆山立信隆流体 凭借多年的技术经验和高效···...
相关产品
自由浮球式疏水阀

WK自由浮球式疏水阀能连续排水性能稳定,排水量大···...杠杆浮球式蒸汽疏水阀

杠杆浮球式疏水阀排水量大,连续排水没有积水高效节···...倒桶式蒸汽疏水阀

WK倒桶式蒸汽疏水阀内置过滤器止回阀活动式杠杆,···...





咨询客服
返回列表





请收藏昆山立信隆流体科技有限公司
请关注昆山立信隆流体科技有限公司